一、项目简介:
医院拟开展“婚检点氛围营造”设计制作施工供应商遴选项目。
二、项目发布方式:
本项目在taptap快速指令官网主页上公开发布(提供免费下载),供符合条件的生产企业、经营企业以及潜在供应商前来参加。
三、品目、配置及需求:
氛围改造清单 | ||||
序号 | 区域 | 项目 | 数量 | 单位 |
1 | 宣教室改造 | 原顶拆除:拆除原扣板顶面 | 18 | ㎡ |
乳胶漆制作:清理基层,修补,砂纸打磨,立邦工程乳胶漆底漆一遍,面漆两遍 | 51 | ㎡ | ||
吊顶装饰:C50系列轻钢龙骨,单层9.5厚纸面石膏板 | 24 | ㎡ | ||
定制家具:木质框架+PU皮+高密度海绵+防磨垫 | 1 | 项 | ||
墙面开窗:开洞、修复。 | 1 | 项 | ||
灯具采购:嵌入式筒灯、成品吊灯 | 1 | 项 | ||
电路改造:超五类网线、穿线管、辅料、人工(以实际数量为准) | 1 | 项 | ||
展示柜:烤漆、玻璃成品柜 | 1 | 项 | ||
2 | 通道改造 | 展示形象墙:10mm立体字烤漆制作 | 15 | ㎡ |
宣传内容:基层10mmPVC,面贴写真 | 18 | ㎡ | ||
3 | 抽血检验室 | 吊顶维修:更换局部吊顶 | 1 | 项 |
墙布制作:底灰腻子、抹灰基层处理、涂刷防潮底漆及底胶 | 30 | ㎡ | ||
灯具采购:成品平板灯 | 4 | 个 | ||
4 | 检查室改造01 | 吊顶维修:更换局部扣板 | 1 | 项 |
墙布制作:底灰腻子、抹灰基层处理、涂刷防潮底漆及底胶 | 28 | ㎡ | ||
灯具采购:成品平板灯 | 4 | 个 | ||
5 | 检查室改造02 | 吊顶维修:更换局部扣板 | 1 | 项 |
墙布制作:底灰腻子、抹灰基层处理、涂刷防潮底漆及底胶 | 27 | ㎡ | ||
灯具采购:成品平板灯 | 4 | 个 | ||
6 | 检查室改造03 | 吊顶维修:更换局部扣板 | 1 | 项 |
墙布制作:底灰腻子、抹灰基层处理、涂刷防潮底漆及底胶 | 28 | ㎡ | ||
灯具采购:成品平板灯 | 4 | 个 | ||
7 | 检查室改造04 | 吊顶维修:更换局部扣板 | 1 | 项 |
墙布制作:底灰腻子、抹灰基层处理、涂刷防潮底漆及底胶 | 30 | ㎡ | ||
灯具采购:成品平板灯 | 4 | 个 | ||
9 | 安装费 | 物流、人工、建渣清运,现场保护 | 1 | 项 |

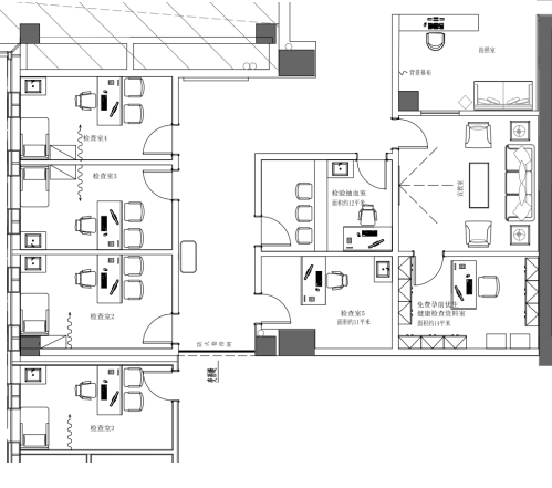
注:请附上设计示意图。
四、提供真实齐全的资质证明文件一份(保证所提供的各种材料和证明材料的真实性,承担相应的法律责任,并请按照下面的顺序装订):
1.封面(注明包号、品目、公司名称、联系人、联系电话、加盖公司印章)
2.报价一览表(见附件)
3.有效的三证合一营业执照(副本);法定代表人身份授权书,法定代表人和经办人身份证复印件;
4.质量保证书(见附件)
5.经办人授权委托书(原件,见附件),法人、经办人身份证复印件
6.国家规定的其它相关资质证明文件或其它涉及特许经营许可的须提供经营许可证书的复印件
7.售后服务承诺书(含质量、货源保证,产品验收标准、质保期、售后服务响应等)
8.相关产品类似业绩
9.封底
五、报价要求
1.以人民币报价。(报价格式见附件)
2.报价表中的价格应包括货物设计、材料、制造、包装、运输、装卸、保险、关税、增值税、仓储、商检、卫检、报关、输机、清关手续费、调试、培训、质检、保修、其它伴随服务等所有费用。
3.可提供多种备选产品,分别报价,并分别说明性能、配置及参数。
六、其他说明:
1.根据要求及自身实际,用A4纸编制资料,严格按上述第四条的装订顺序编制资料,密封,正本一本。
2.如有,提供相关的产品技术资料。
3.提供的所有资料须加盖鲜章。
七、文件递交时间、地点
递交文件截止时间:2023年4月26日17:00前。
递交文件地点:taptap快速指令2号楼5楼501。文件必须在递交文件截止时间前送达。逾期送达、密封和标注错误的文件,恕不接收。本次采购不接收邮寄的响应文件。
九、其他说明
1.项目解释权归院务部,联系人:张老师,68938000。
2.各参会供应商如对此项目有质疑、投诉,请于采购时间截止前即2023年4月26日15:00点前以书面形式向纪检监察室提出,超期不予受理。纪检监察室联系人:邹老师69517102。
附件1
氛围改造报价表 | ||||||
序号 | 区域 | 项目 | 数量 | 单位 | 单价 | 总价 |
1 | 宣教室改造 | 原顶拆除:拆除原扣板顶面 | 18 | ㎡ | ||
乳胶漆制作:清理基层,修补,砂纸打磨,立邦工程乳胶漆底漆一遍,面漆两遍 | 51 | ㎡ | ||||
吊顶装饰:C50系列轻钢龙骨,单层9.5厚纸面石膏板 | 24 | ㎡ | ||||
定制家具:木质框架+PU皮+高密度海绵+防磨垫 | 1 | 项 | ||||
墙面开窗:开洞、修复。 | 1 | 项 | ||||
灯具采购:嵌入式筒灯、成品吊灯 | 1 | 项 | ||||
电路改造:超五类网线、穿线管、辅料、人工(以实际数量为准) | 1 | 项 | ||||
展示柜:烤漆、玻璃成品柜 | 1 | 项 | ||||
2 | 通道改造 | 展示形象墙:10mm立体字烤漆制作 | 15 | ㎡ | ||
宣传内容:基层10mmPVC,面贴写真 | 18 | ㎡ | ||||
3 | 抽血检验室 | 吊顶维修:更换局部吊顶 | 1 | 项 | ||
墙布制作:底灰腻子、抹灰基层处理、涂刷防潮底漆及底胶 | 30 | ㎡ | ||||
灯具采购:成品平板灯 | 4 | 个 | ||||
4 | 检查室改造01 | 吊顶维修:更换局部扣板 | 1 | 项 | ||
墙布制作:底灰腻子、抹灰基层处理、涂刷防潮底漆及底胶 | 28 | ㎡ | ||||
灯具采购:成品平板灯 | 4 | 个 | ||||
5 | 检查室改造02 | 吊顶维修:更换局部扣板 | 1 | 项 | ||
墙布制作:底灰腻子、抹灰基层处理、涂刷防潮底漆及底胶 | 27 | ㎡ | ||||
灯具采购:成品平板灯 | 4 | 个 | ||||
6 | 检查室改造03 | 吊顶维修:更换局部扣板 | 1 | 项 | ||
墙布制作:底灰腻子、抹灰基层处理、涂刷防潮底漆及底胶 | 28 | ㎡ | ||||
灯具采购:成品平板灯 | 4 | 个 | ||||
7 | 检查室改造04 | 吊顶维修:更换局部扣板 | 1 | 项 | ||
墙布制作:底灰腻子、抹灰基层处理、涂刷防潮底漆及底胶 | 30 | ㎡ | ||||
灯具采购:成品平板灯 | 4 | 个 | ||||
9 | 安装费 | 物流、人工、建渣清运,现场保护 | 1 | 项 | ||
合计 | ||||||
1.报价应是最终用户验收合格后的总价,包括设备运输、保险、代理、安装调试、培训、税费、系统集成费用和采购文件规定的其它费用。
2.“品目及报价表”为多页的,每页均需由法定代表人或授权代表签字并盖投标人印章。
3.如有多种规格,请按每种规格分别报价。
供应商名称:(盖章)
法定代表人或授权代表(签字):
日期:
质量保证书
:
(制造商家名称)是在 .(国名)依法登记注册的,其地址现在 。其主要营业地点现在 。
作为供应商,我方承诺,为本次招标提供的货物为原厂制造、合法渠道供应的全新产品。我方保证以投标合作者来约束自己,并对该投标共同承担和分别承担招标文件中所规定的义务。
供应商单位名称: (盖章)
供应商单位法定代表人或授权代表(签字):
日期:
附:授权销售产品清单
法定代表人身份授权书
(采购单位名称):
本授权声明: (投标人名称) (法定代表人姓名、职务)授权 (被授权人姓名、职务)为我方 “ ”项目投标活动的合法代表,以我方名义全权处理该项目有关投标、签订合同以及执行合同等一切事宜。
特此声明。
法定代表人签字:
授权代表签字:
投标人名称: (加盖公章)
日期:
★说明:上述证明文件附有法定代表人、被授权代表身份证复印件(加盖公章)时才能生效。
附件下载: